はじめに
前回は、開業前1年間のスケジュールについて紹介しました。しかし1年間を振り返る形では、どうしても一つ一つの出来事を深く書くことができず、やや薄い内容になってしまいました。そこで今回は、その中でも特に重要だった「図面作成とレイアウト設計」について、どのように考え、決断していったのかを紹介します。

1.建物の背景と図面作成
今回使用した建物は築50年以上。もともとは喫茶店で、祖父が購入し、父の代で小売店、その後コインランドリーとして使われていました。幼少期は住んでいたこともある思い入れのある建物です。この建物を改装して薬局にする計画でした。しかし古い建物のため図面が存在しない状態。そこで改装業者が現地測量を行い、図面を起こしてくれることになりました。
2.レイアウト設計の基本方針
薬局設計にあたり、最初に決めていたのは以下の点です。
- 待合室は2~3名程度を想定(外来中心ではない)
- 在宅医療重視のため調剤室を最大限広く確保
- 経腸栄養剤・高カロリー輸液など大量ストックが必要
- 将来の分包機など大型機器搬入を想定し広い出入口を設置
- 調剤室から待合室が見える構造(コミュニケーション重視)
3.最初の図面と課題
コインランドリーの構造を活かして作成されたのが最初の図面 (図1) です。構造上外せない可能性のある柱 (赤〇部分) があり、すべて残す方針となりました。

(図1)
現状のコインランドリーの構造をそのまま活かして改装業者の方で作成してくれたのが図1です(落書きしたものしか残っていませんでした)。構造上外せない(と思われるものも含めて)柱が赤丸で示した部分です。外側に並んだ柱がどれが構造上外せないか分からなかったので全て残す方針でした。
良い点
- 既存構造を活かせる
悪い点
- トイレ位置が不適切(水道・排水の問題)
- 将来的な改装が困難
- 調剤室が狭い
- 調剤機器搬入がしにくい
- 柱が動線の邪魔になる
排水の問題からトイレは左側へ移動。実は左奥から階段で2階へ続く構造があり、将来的には会議室・休憩室として活用したいと考えていました。しかし一度外へ出なければならず不便でした。
4.大きな転換:入口の左右反転
悩み抜いた末、新たに左側に入口を設けて元の図面を左右反転させる案を閃きました (図2)。

(図2)
改善点
- 調剤室:27.21 → 34.20㎡
- 待合室:23.68 → 29.39㎡
- 2階動線の確保
- 元の入口は従業員・搬入口として活用
デメリットとしては、新たに入口を作るため費用がかかることぐらいでした。この時点で保健所へ事前確認を実施しました。(※早めの確認は必須)また、もともと建物の右側にあった出入口が調剤室内になってしまうことが懸念事項であったため、その点についても確認しました。
保健所での確認ポイント
- ① 調剤室内の使用しない既存出入口 (図面の右側) → 封鎖すればOK
- ② 休憩室必須 → ストック兼用でOK
- ③ 休憩室へ調剤室を通る構造 → NG(外通路経由で対応し、出入口は機器搬入時のみ使用)
5.調剤機器配置の検討
調剤機器メーカーに依頼し、具体的な配置図 (図3) を作成。 今回は湯山製作所(ユヤマ)の機器を中心に設計したので、ユヤマさんに作成してもらいました。

(図3)
配置方針
- 調剤スペースはコンパクトに左側へ集約
- 受付との窓は開放し患者とのコミュニケーション重視 (保健所確認済)
- 右側は輸液・栄養剤ストック+クリーンベンチ設置
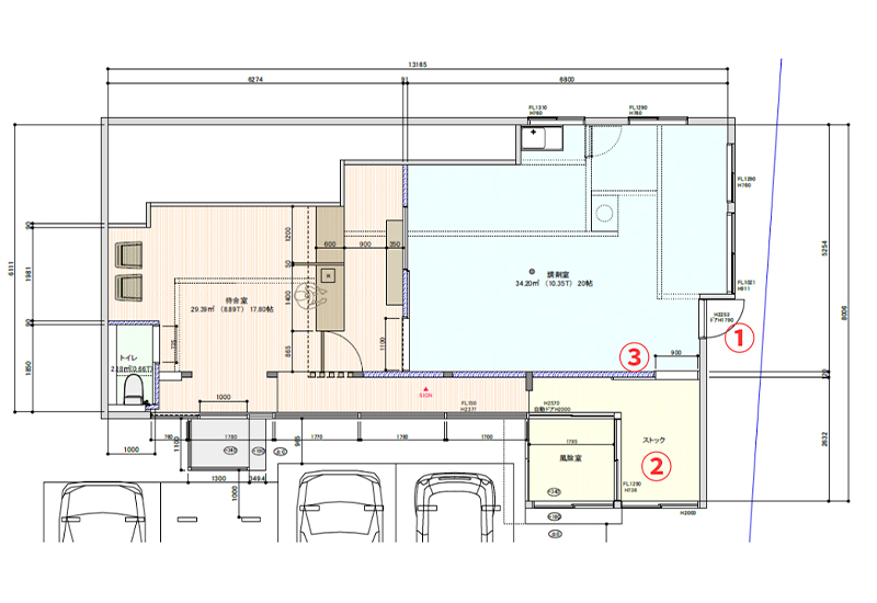
6.解体後の想定外:「思ったより広い」
レイアウトが概ね決まったので改装工事を進めました。コインランドリーを解体すると、想定より広い空間が出現。急遽レイアウトを再設計 (図4)。

(図4)
- 調剤室:34.20 → 52.39㎡
- 広がった上部スペースをデスクワーク+ストックに活用
- 調剤室~休憩室入口を幅120cmの大型ドアに変更⇒大型調剤機器の搬入が容易に
令和8年度調剤報酬改定で今後新設される薬局では調剤室の広さ16㎡以上であることが「地域支援・医薬品供給対応体制加算」となりましたが、余裕でクリアする広さを確保できました。
7.最後の難関:コンセントとLAN設計
ここまで設計が進むと、最後に重要になってくるのがコンセントとLANの位置です。受付まわりには想像以上に多くの電源が必要になります。以下のように多くの機器を同時に使用するため、電源はいくらあっても足りないと感じるほどです。
受付で必要となる主な機器
- レセコン本体・モニター
- オンライン資格確認用パソコン
- カードリーダー
- プリンター
- ラベルプリンター
調剤室においても同様で、調剤機器を設置する場所の近くには必ずコンセントとLANが必要になります。特に調剤機器はアース付き(3ピン)の電源が必須であり、さらにレセコンと連携するためにはLAN配線も欠かせません。将来的にレイアウトを変更する可能性も考えていたため、コンセントとLANは特定の場所に限定せず、さまざまな位置に設置することにしました。ある在宅薬局の経営者から「コンセントは多いと思うくらいでちょうどいい。むしろ2倍作っておけ」と助言をいただき、その言葉どおり、可能な限り多く設置しました。外来中心の薬局であれば大きなレイアウト変更は少ないため、ここまで必要ないかもしれませんが、在宅中心の場合は将来的な変化を見越した設計が重要だと感じています。
設置方法についても悩みました。壁がない場所では床に設置するか、天井に設置するかという選択になります。それぞれにメリット・デメリットがあります。
設置方法の検討
- 床設置:足を引っかけたり、機器移動時に破損するリスクがある
- 天井設置:コードが垂れ下がり見た目が気になる
検討の結果、天井から吊り下げる方式を採用しました。さらに天井にはダクトレールを設け、必要に応じて位置を移動できるようにしています。また、コンセントの高さも重要なポイントであり、分包機の高さに合わせて設置してもらいました。
こうして最終的なコンセントとLANの配置が決まりました(図5)。しかし実際に運用を始めて1年ほど経過すると、想定していなかった場所に分包機を設置したり、新たにデスクを置いたりすることになり、結果として電源もLANもまったく足りないという状況に。多めに設置したつもりでも、現場ではそれ以上に必要になる。これが実感でした。

図5
8.まとめ
今回は図面作成とレイアウト設計について紹介しました。図面が存在しない古い建物という条件からスタートし、多くのイレギュラーがありましたが、レイアウトを考えている時間は最もワクワクする時間でもありました。そして同時に迫ってくる現実――「この後の請求、大丈夫か…」
次回は「資金繰り」について紹介します。